Torre Indaver

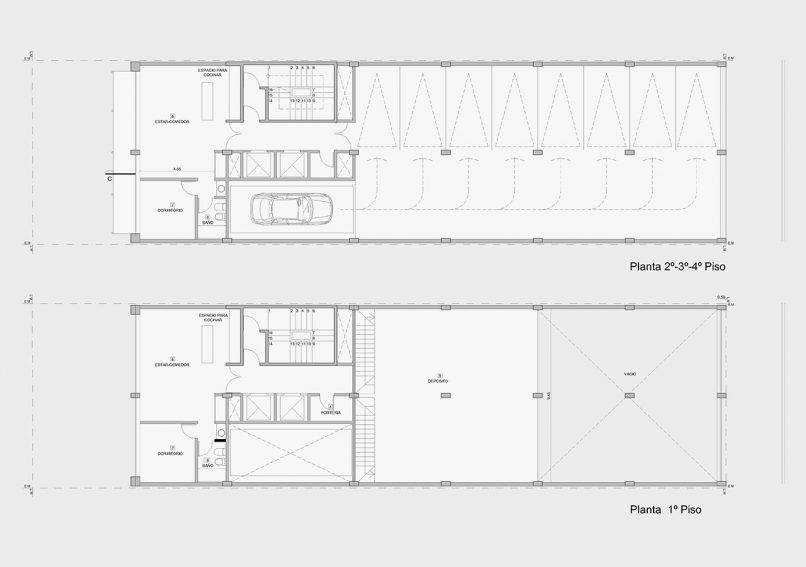
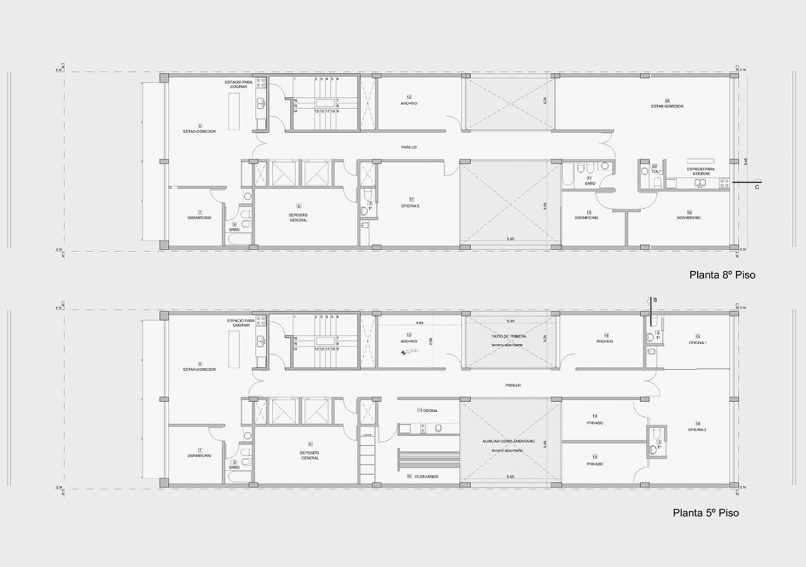
El edificio Indaver se proyecta en un lote entre medianeras con el planteo de incorporar dos programas distintos entre si, los cuales no se evidencian en sus fachadas.
Por otra el proyecto incorpora en su terraza un espacio verde que le es devuelto a la ciudad.

Superficie: 2.300m²
Fecha Proyecto: 2015
Proyecto: Arq.Matias Rodriguez – Arq. Matias Forsetti
Colaboradores: Arq. Mellado Sabrina, Dibujo Daniel Chavez, Ingeniero Oscar Troviano.
Fotografías: Lucas De Cesco