Ruggiero

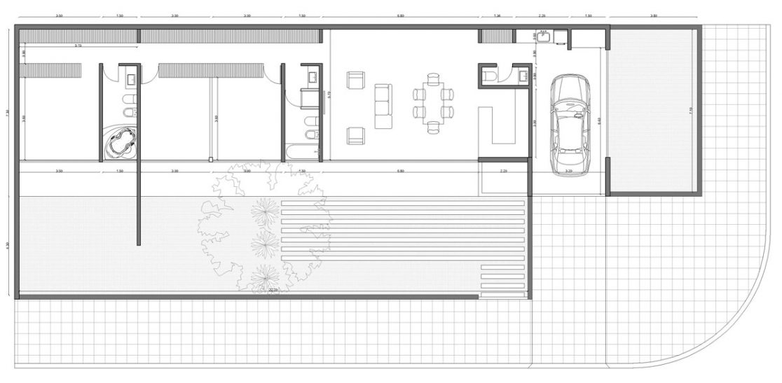
Situada en la ciudad de Plottier, en un terreno rectangular en esquina, se posiciona el bloque de vivienda en una de sus medianeras, dándole la amplitud espacial hacia su patio principal a todo su frente. Se logra liberar la ochava para generar el ingreso al recinto.

Superficie: 160m² – Semicubiera: 20m²
Fecha Proyecto: 2015
Proyecto: Arq.Matias Rodriguez
Colaboradores : Arq. Mellado Sabrina, Ingeniero Sergio Percat.